








Usable Area: 18 sqm.
- Interior + Toilet 22.5 sqm.
- Outdoor Terrace 21 sqm.

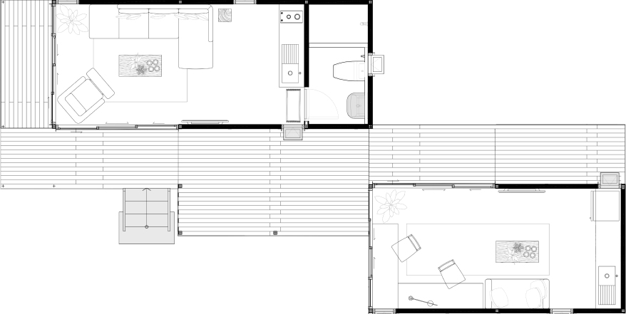
Usable Area : 46.5 sqm.
- Interior + Toilet 26 sqm.
- Outdoor Terrace 15.5 sqm.
- Outdoor Pet House 5 sqm.

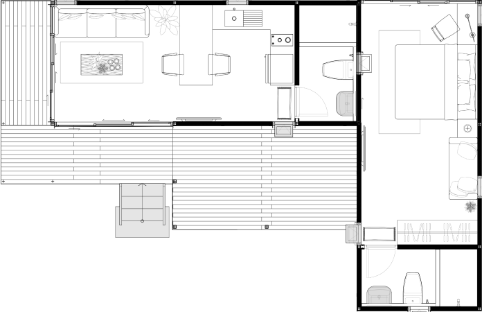
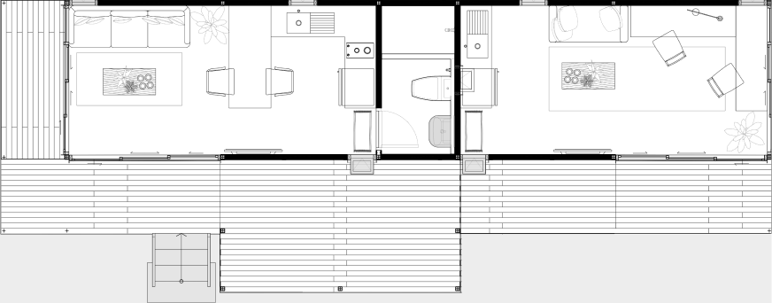
Usable Area : 82.5 sqm.
- Interior + Toilet 45.5 sqm.
- Outdoor Terrace 36.5 sqm.

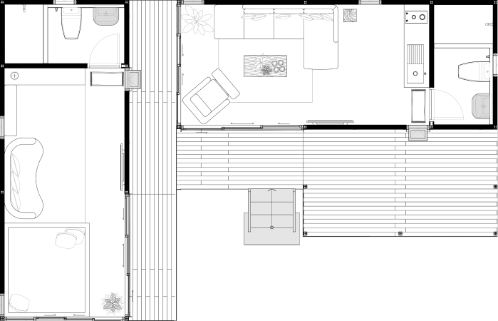
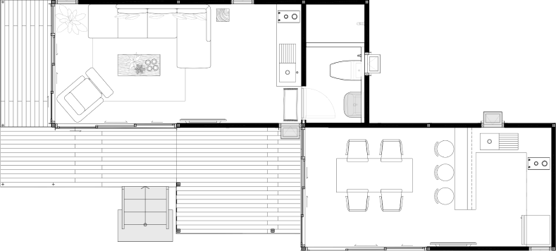
Usable Area : 124 sqm.
- Interior + Toilet 72 sqm.
- Outdoor Terrace 51 sqm.

Structural steel over 2.3 mm thick, certified to TIS standards and up to 1.4× thicker than typical specifications, ensuring long-term strength. Protected with high-performance anti-corrosion coatings from BEGER, and designed and supervised by licensed architects and engineers.

Steel floor joists are spaced at 40 cm for even load distribution and stability.Finished with 20 mm SCG Smart Board and 5 mm SCG SPC Click Lock flooring,creating a solid and firm surface that feels stable and comfortable underfoot.

Steel framing at 60 cm intervals provides strong, rigid walls with minimalmovement. SCG Smart Board is used at 8 mm inside and 10 mm outside,thicker than standard, with 2-inch foil-faced insulation inside the externalwalls to reduce heat.

Balcony floors and exterior ceilings are finished with premium WPC woodcomposite for durability against sun and rain. CONWOOD / SHERA panelsare used at wall joints for a clean finish and long-term water protection.

Wood-grain aluminum frames paired with 6 mm clear glass offer thelook of wood with better durability, sound reduction, and strength.Built-in rain barriers keep interiors quiet and dry.

The roof uses 0.4 mm metal sheets with 1-inch PU insulation, providing strongerweather resistance, reduced heat, and less rain noise, all with a clean, modern profile.

Structural steel over 2.3 mm thick, certified to TIS standards and up to 1.4× thicker than typical specifications, ensuring long-term strength. Protected with high-performance anti-corrosion coatings from BEGER, and designed and supervised by licensed architects and engineers.

Steel floor joists are spaced at 40 cm for even load distribution and stability. Finished with 20 mm SCG Smart Board and 5 mm SCG SPC Click Lock flooring, creating a solid and firm surface that feels stable and comfortable underfoot.

Steel framing at 60 cm intervals provides strong, rigid walls with minimal movement. SCG Smart Board is used at 8 mm inside and 10 mm outside, thicker than standard, with 2-inch foil-faced insulation inside the external walls to reduce heat.

Balcony floors and exterior ceilings are finished with premium WPC wood composite for durability against sun and rain. CONWOOD / SHERA panels are used at wall joints for a clean finish and long-term water protection.

Wood-grain aluminum frames paired with 6 mm clear glass offer the look of wood with better durability, sound reduction, and strength. Built-in rain barriers keep interiors quiet and dry.

The roof uses 0.4 mm metal sheets with 1-inch PU insulation, providing stronger weather resistance, reduced heat, and less rain noise, all with a clean, modern profile.